RESEDENTIAL
37’ × 45’ Independent House Design
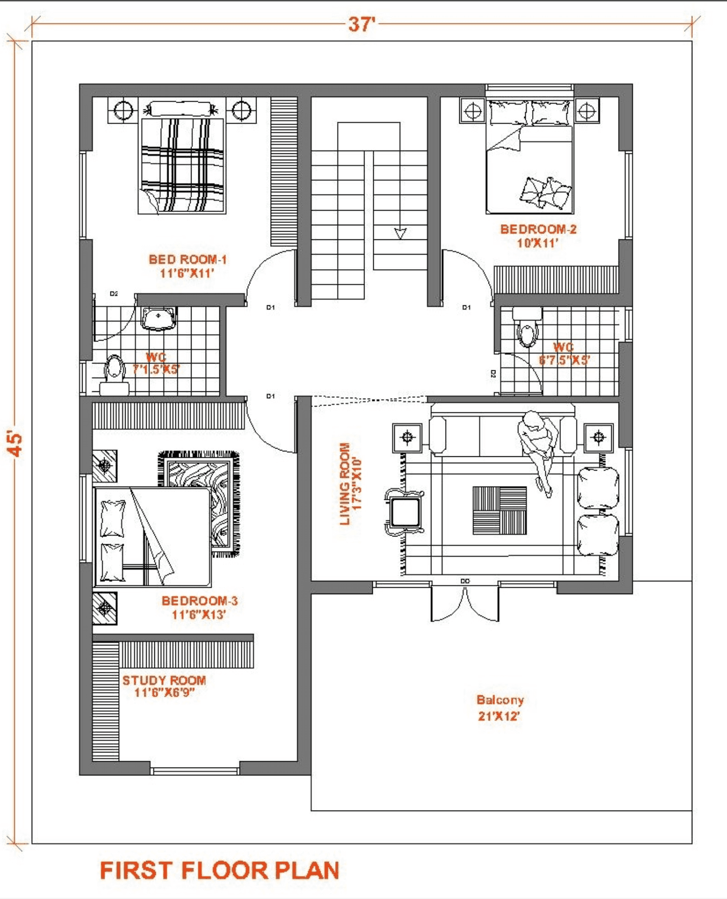
37x45
sq.ft.
30,80,250
G+1
5
BHK
Designed For
Small to medium-sized families
Urban residential plots with setbacks
Self-occupied homes or rental potential
Schematic Design
This 37’ × 45’ house design is planned to make efficient use of a compact urban plot while maintaining comfort, openness, and functionality. The design focuses on smart space utilisation, natural ventilation, and a balanced layout suitable for modern family living.
This 37’ × 45’ house design is planned to make efficient use of a compact urban plot while maintaining comfort, openness, and functionality. The design focuses on smart space utilisation, natural ventilation, and a balanced layout suitable for modern family living.
Key Design Details
Efficient layout that maximises usable space
Well-lit interiors with good cross ventilation
Clear separation of living and private areas
Designed for comfortable family living
Suitable for multi-level construction
Scope for future expansion and customisation
Efficient layout that maximises usable space
Well-lit interiors with good cross ventilation
Clear separation of living and private areas
Designed for comfortable family living
Suitable for multi-level construction
Scope for future expansion and customisation
Popular Floor Plans
Other Popular Floor Plans
Our portfolio boasts a diverse range of successful projects that highlight our expertise, creativity, and dedication to perfection.

A reliable way to build your home
Designed for clarity, control, and responsible construction.
100+
Homes planned and executed responsibly
470+
Defined quality checks across construction stages
100%
Stage-linked and transparent payment structure

A reliable way to build your home
Designed for clarity, control, and responsible construction.
100+
Homes planned and executed responsibly
470+
Defined quality checks across construction stages
100%
Stage-linked and transparent payment structure

A reliable way to build your home
Designed for clarity, control, and responsible construction.
100+
Homes planned and executed responsibly
470+
Defined quality checks across construction stages
100%
Stage-linked and transparent payment structure








