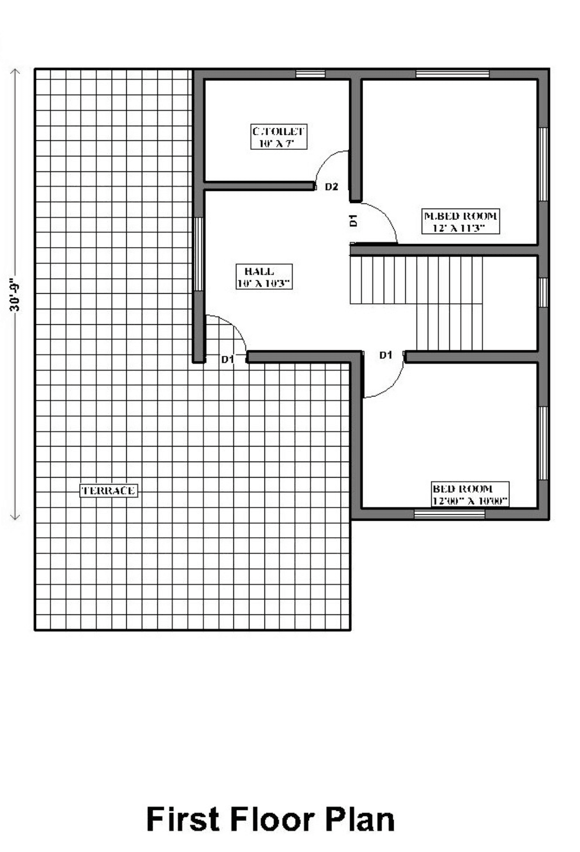
RESEDENTIAL
35’ × 38’ Independent House Design
35X38
sq.ft.
24,60,500
G+1
4
BHK
Designed For
Medium-sized families
Urban independent residential plots
Long-term self-occupied homes
Schematic Design
Key Design Details
Spacious interiors with practical room proportions
Well-ventilated layout with natural light
Clear separation of common and private spaces
Designed for multi-level residential use
Flexible layout supporting future expansion
Popular Floor Plans
Other Popular Floor Plans
Our portfolio boasts a diverse range of successful projects that highlight our expertise, creativity, and dedication to perfection.









