RESEDENTIAL
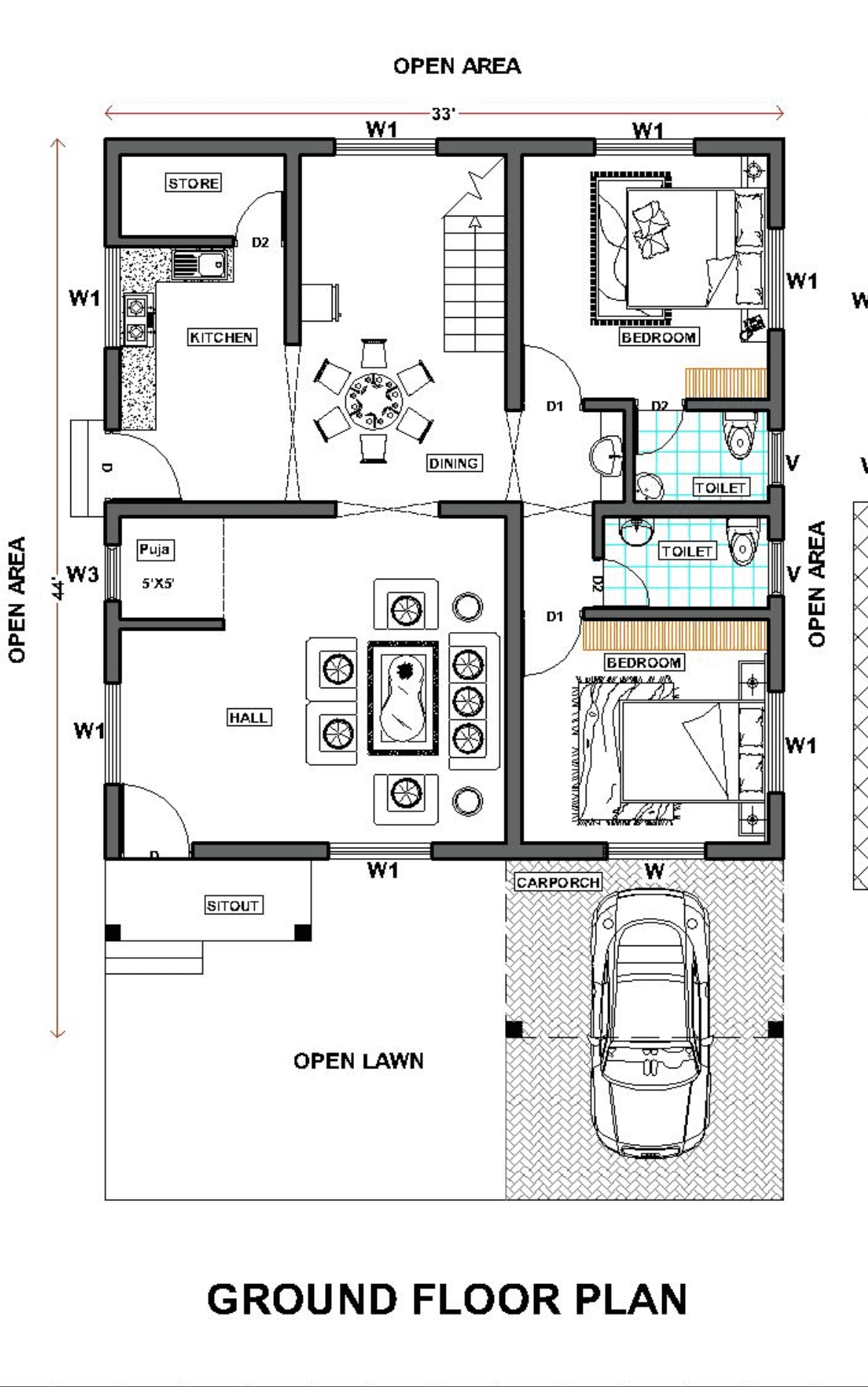
33’ × 44’ Independent House Design
33X44
sq.ft.
26,86,200
G+1
4
BHK
Designed For
Medium to large families
Urban independent residential plots
Homes focused on openness and comfort
Schematic Design
Key Design Details
Well-balanced planning for standard urban plots
Open and airy layout with ample natural light
Efficient circulation and practical zoning
Designed to support multi-level residential use
Open areas enhancing ventilation and usability
Flexible layout adaptable to future requirements
Popular Floor Plans
Other Popular Floor Plans
Our portfolio boasts a diverse range of successful projects that highlight our expertise, creativity, and dedication to perfection.









