RESEDENTIAL
30’ × 50’ Independent House Design
30x50
sq.ft.
27,75,000
G
4
BHK
Designed For
Medium-sized families
Independent residential plots
Self-use homes with future growth potential
Schematic Design
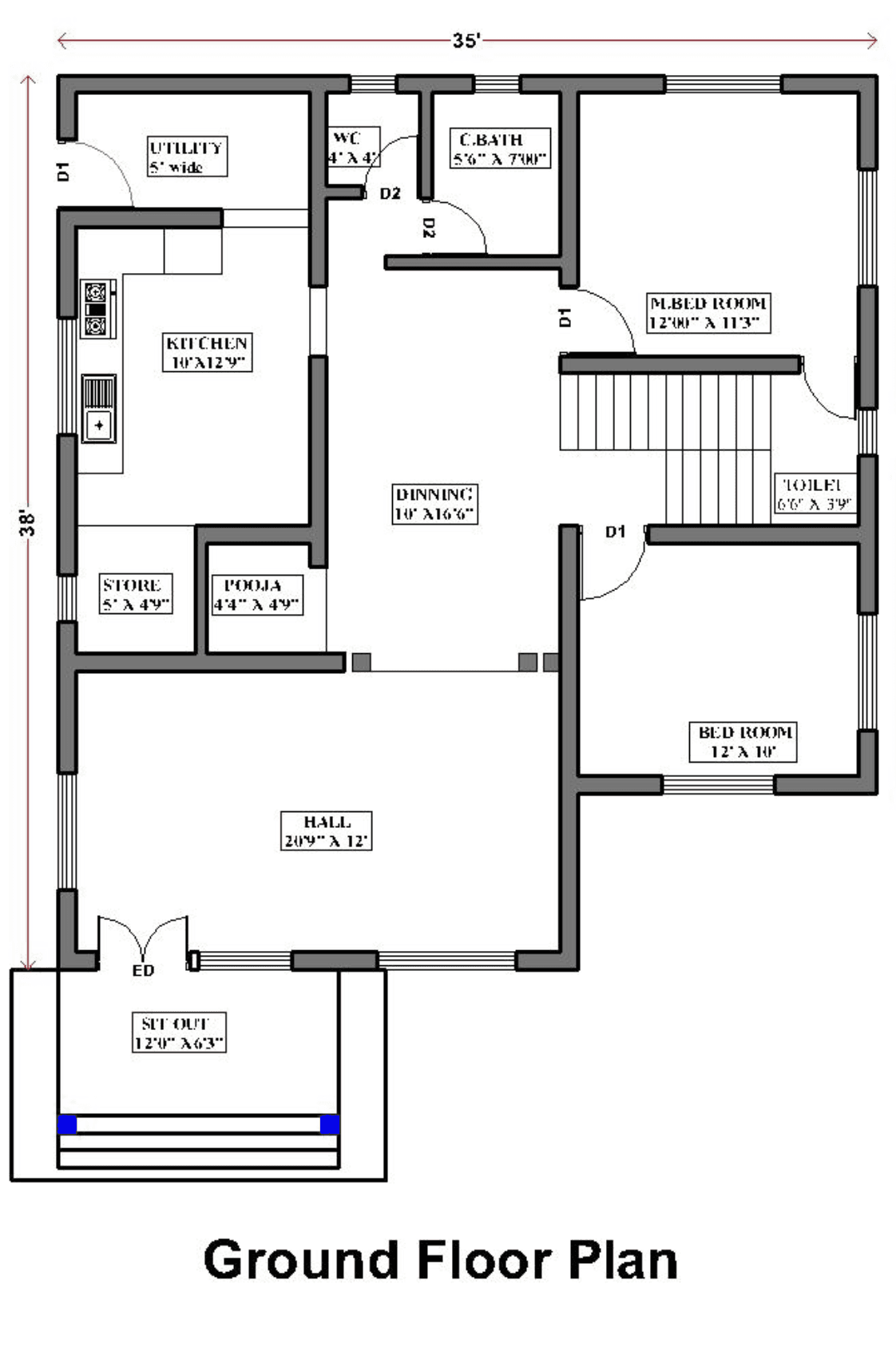
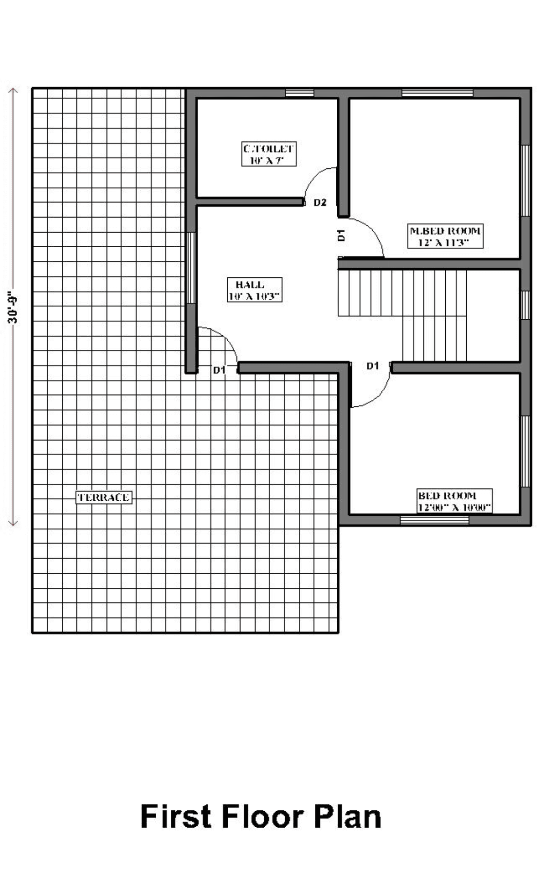
Key Design Details
Efficient planning for standard-sized urban plots
Spacious layout with good natural light and airflow
Practical zoning for daily living and private spaces
Designed to support multi-level residential use
Scope for terrace utilisation and future expansion
Adaptable layout for long-term family needs
Popular Floor Plans
Other Popular Floor Plans
Our portfolio boasts a diverse range of successful projects that highlight our expertise, creativity, and dedication to perfection.









