RESEDENTIAL
27’ × 53’ Independent House Design
27X53
sq.ft.
26,47,340
G+2
5
BHK
Designed For
Medium to large families
Narrow urban residential plots
Homes with future expansion needs
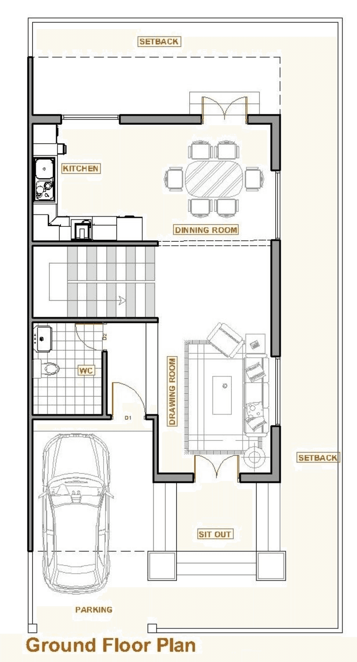
Schematic Design
Key Design Details
Optimised planning for narrow and deep plots
Efficient vertical space utilisation
Well-ventilated interiors with natural light
Clear zoning between common and private areas
Designed for multi-level residential construction
Flexible layout with terrace usage potential
Popular Floor Plans
Other Popular Floor Plans
Our portfolio boasts a diverse range of successful projects that highlight our expertise, creativity, and dedication to perfection.









