RESEDENTIAL
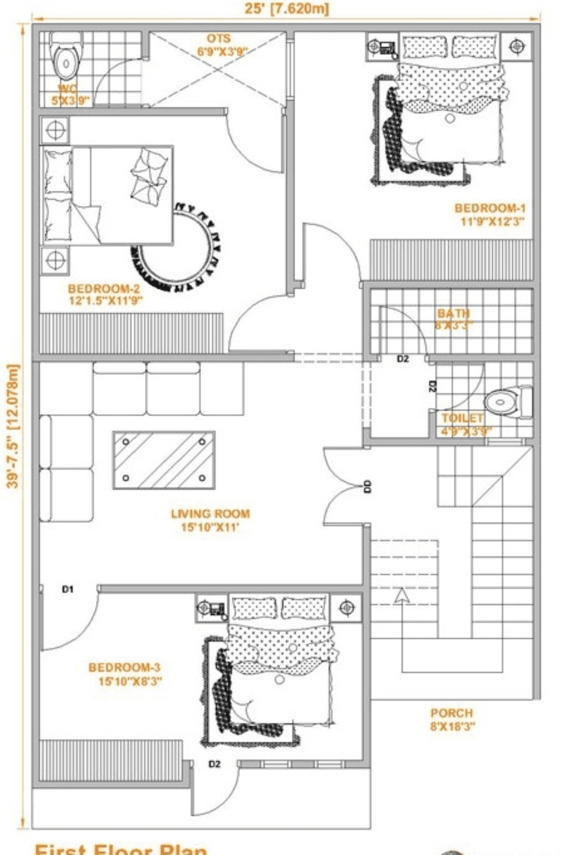
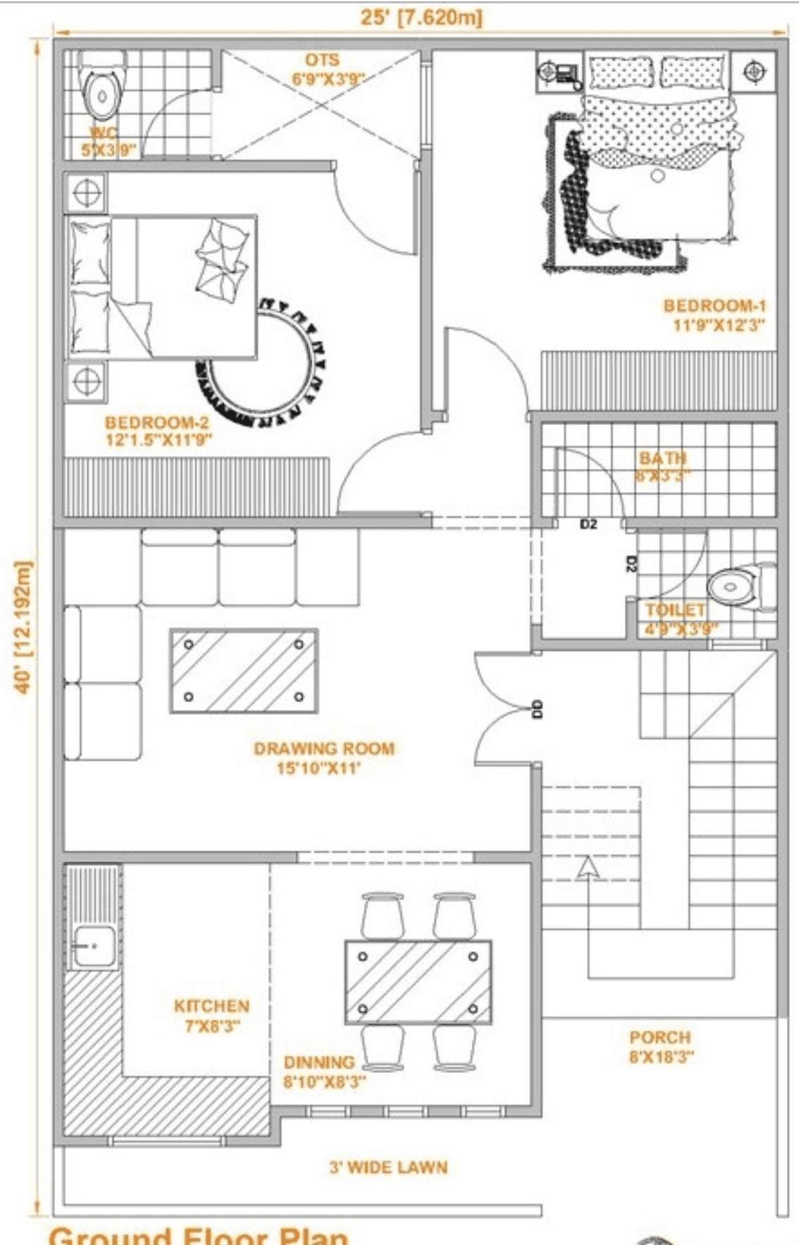
25’ × 40’ Independent House Design
25X40
sq.ft.
18,50,000
G+1
5
BHK
Designed For
Small to medium-sized families
Narrow urban plots with setbacks
Long-term residential use or rental potential
Schematic Design
Key Design Details
Efficient use of built-up area with minimal wastage
Well-ventilated interiors with natural light
Balanced zoning for living and private spaces
Suitable for multi-level residential construction
Flexible layout for future expansion or modifications
Popular Floor Plans
Other Popular Floor Plans
Our portfolio boasts a diverse range of successful projects that highlight our expertise, creativity, and dedication to perfection.









